Overview
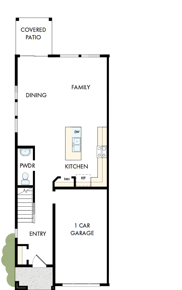
Welcome home to a bright, inviting foyer that leads to the back of the home. A wall of oversized windows fills the main living area with natural light, while 9-foot ceilings enhance the open concept design.
The dining area features a glass door that opens to a private, covered rear porch, creating a seamless transition to outdoor living. This comfortable space is ideal for relaxing evenings or hosting friends and family.
Upstairs, a conveniently placed laundry area at the top of the stairs adds everyday efficiency. The Owner's Retreat is at the front of the home and features abundant windows and a spacious Owner's Bath with ample space to move.
Thoughtful planning is evident throughout the layout, including the attached one car garage. As an end unit, this home offers added privacy and a more open, natural setting.
Call or chat with the David Weekley Homes at Nexus Team to learn more about this new home for sale in Gallatin, TN!
Learn More Show Less
Welcome home to a bright, inviting foyer that leads to the back of the home. A wall of oversized windows fills the main living area with natural light, while 9-foot ceilings enhance the open concept design.
The dining area features a glass door that opens to a private, covered rear porch, creating a seamless transition to outdoor living. This comfortable space is ideal for relaxing evenings or hosting friends and family.
Upstairs, a conveniently placed laundry area at the top of the stairs adds everyday efficiency. The Owner's Retreat is at the front of the home and features abundant windows and a spacious Owner's Bath with ample space to move.
Thoughtful planning is evident throughout the layout, including the attached one car garage. As an end unit, this home offers added privacy and a more open, natural setting.
Call or chat with the David Weekley Homes at Nexus Team to learn more about this new home for sale in Gallatin, TN!
More plans in this community
The Bunting Int
From: $299,990
Sq. Ft: 1665
The Pintail End
From: $311,990
Sq. Ft: 1685
The Pintail Int
From: $304,990
Sq. Ft: 1685
Quick Move-ins
The Bunting Int
913 Tellico Street, Gallatin, TN 37066
$317,990
Sq. Ft: 1665
The Bunting Int
917 Tellico Street, Gallatin, TN 37066
$321,990
Sq. Ft: 1665
The Bunting Int
929 Tellico Street, Gallatin, TN 37066
$312,990
Sq. Ft: 1665
The Bunting Int
937 Tellico Street, Gallatin, TN 37066
$317,990
Sq. Ft: 1665
The Bunting Int
944 Tellico Street, Gallatin, TN 37066
$311,990
Sq. Ft: 1665
The Bunting Int
952 Tellico Street, Gallatin, TN 37066
$315,990
Sq. Ft: 1665
The Pintail End
909 Tellico Street, Gallatin, TN 37066
$326,990
Sq. Ft: 1685
The Pintail End
925 Tellico Street, Gallatin, TN 37066
$330,274
Sq. Ft: 1685
The Pintail End
941 Tellico Street, Gallatin, TN 37066
$328,990
Sq. Ft: 1685
The Pintail End
940 Tellico Street, Gallatin, TN 37066
$330,990
Sq. Ft: 1685
The Pintail End
956 Tellico Street, Gallatin, TN 37066
$331,990
Sq. Ft: 1685
The Pintail Int
933 Tellico Street, Gallatin, TN 37066
$299,990
Sq. Ft: 1685
The Pintail Int
948 Tellico Street, Gallatin, TN 37066
