Overview
This Nokomis is fully finished with a lookout basement! Work from home in the main floor study and enjoy the open and airy open concept main floor. The Nokomis is loved for is 9' ceilings on the main floor and the large windows throughout.
Four bedrooms total in this home! Upstairs you can enjoy a large owners suite with a luxurious bathroom including a walk in shower and separate tub, and walk in closet. Enjoy two more spacious bedrooms upstairs plus a convenient laundry room.
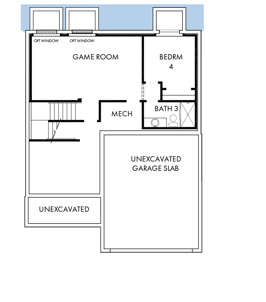
The Lookout basement is full of windows and includes a game room, bedroom, and 3/4 bath. Perfect for guests or anyone wanting their own space.
Stop by the model home at 1542 Philipp Way, Shakopee to learn more about Summerland Place. With walking trails, a nearby park, dining, entertainment, and easy access to highways - this community is selling fast!
Learn More Show Less
This Nokomis is fully finished with a lookout basement! Work from home in the main floor study and enjoy the open and airy open concept main floor. The Nokomis is loved for is 9' ceilings on the main floor and the large windows throughout.
Four bedrooms total in this home! Upstairs you can enjoy a large owners suite with a luxurious bathroom including a walk in shower and separate tub, and walk in closet. Enjoy two more spacious bedrooms upstairs plus a convenient laundry room.
The Lookout basement is full of windows and includes a game room, bedroom, and 3/4 bath. Perfect for guests or anyone wanting their own space.
Stop by the model home at 1542 Philipp Way, Shakopee to learn more about Summerland Place. With walking trails, a nearby park, dining, entertainment, and easy access to highways - this community is selling fast!
Recently Viewed
Parkview Terrace - Single-Family Homes
The Beekman
731 Glade Avenue, Forest Grove, OR 97116
$726,940
Sq. Ft: 2559
More plans in this community
The Crestwood
From: $513,990
Sq. Ft: 2299 - 2893
The Gregorian
From: $514,990
Sq. Ft: 2413 - 3127
The Mille Lacs
From: $481,990
Sq. Ft: 1713 - 3050
The Nokomis
From: $496,990
Sq. Ft: 1982 - 2581
The Ontario
From: $525,990
Sq. Ft: 2565 - 3481
The Vermilion
From: $519,990
Sq. Ft: 2290 - 3002
Quick Move-ins
The Crestwood
1658 Tyrone Drive, Shakopee, MN 55379
$559,000
Sq. Ft: 2299
The Crestwood
1691 Tyrone Drive, Shakopee, MN 55379
$585,000
Sq. Ft: 2893
The Ontario
1632 Tyrone Drive, Shakopee, MN 55379
$565,000
Sq. Ft: 2565
Recently Viewed
Parkview Terrace - Single-Family Homes
The Beekman
731 Glade Avenue, Forest Grove, OR 97116
